Home
Green court
Gallery
Location
The office
The authors
Codic
Architects
News
Contact
The office
Floor
Office area
(incl. terrace)
sqm
Retail area
(incl. terrace)
sqm
7
1,583
6
2,491
5
2,477
4
2,487
3
2,473
2
2,487
1
2,865
0
1,759
Total
16,863
1,885
Basement:
Storage 950 sqm
Underground parking 300 plots
YOUR OFFICE IN BUDAPEST
Environment
Productive workplace committed to well- being
3,300 sqm landscape inner green park
Terraces on each floor and attractive roof terraces
Exceptional visibility for corporate branding
Elegant, 4 meter high ceiling lobbies
Adjacent to Kassák Park, in the vicinity of the City park
Inhabited urban surrounding area
High Tech & Sustainability
Energy efficient double skin facade on the street sides to secure a thermal barrier, solar and accoustical block
Super selective glass applied all over the façade ensures copius daylight and protects against overheating
LED lighting designed in the entire building
Presence sensors, PIR movement and daylight sensors to secure efficient energy usage
Sprinkler system in the entire building for higher safety
District heating in combination with air heat pumps
High comfort, silent chilled beam cooling
Ventilation system equipped with heat recovery function
Dual power supply
Comfort
Double lobby design ideal solution for companies seeking for headquarters
Ventilation in office area 50 m³/h/person (Design density up to 1 person/7 sqm of )
Leasable area from 1,200-2,400 sqm per floor plate, flexible partitioning
2.8 m free height generally in the office space
Exceptional daylight due to the full height glazing of the facade
Air Handling Units (AHU) with humidity recovery
High speed Wi-Fi in main lobbies and courtyard
Over 100 bike racks with several shower and changing facilities
Underground parking with E-chargers
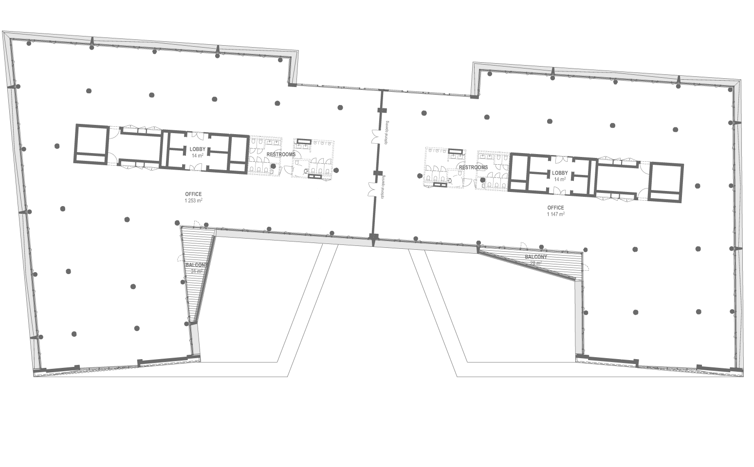
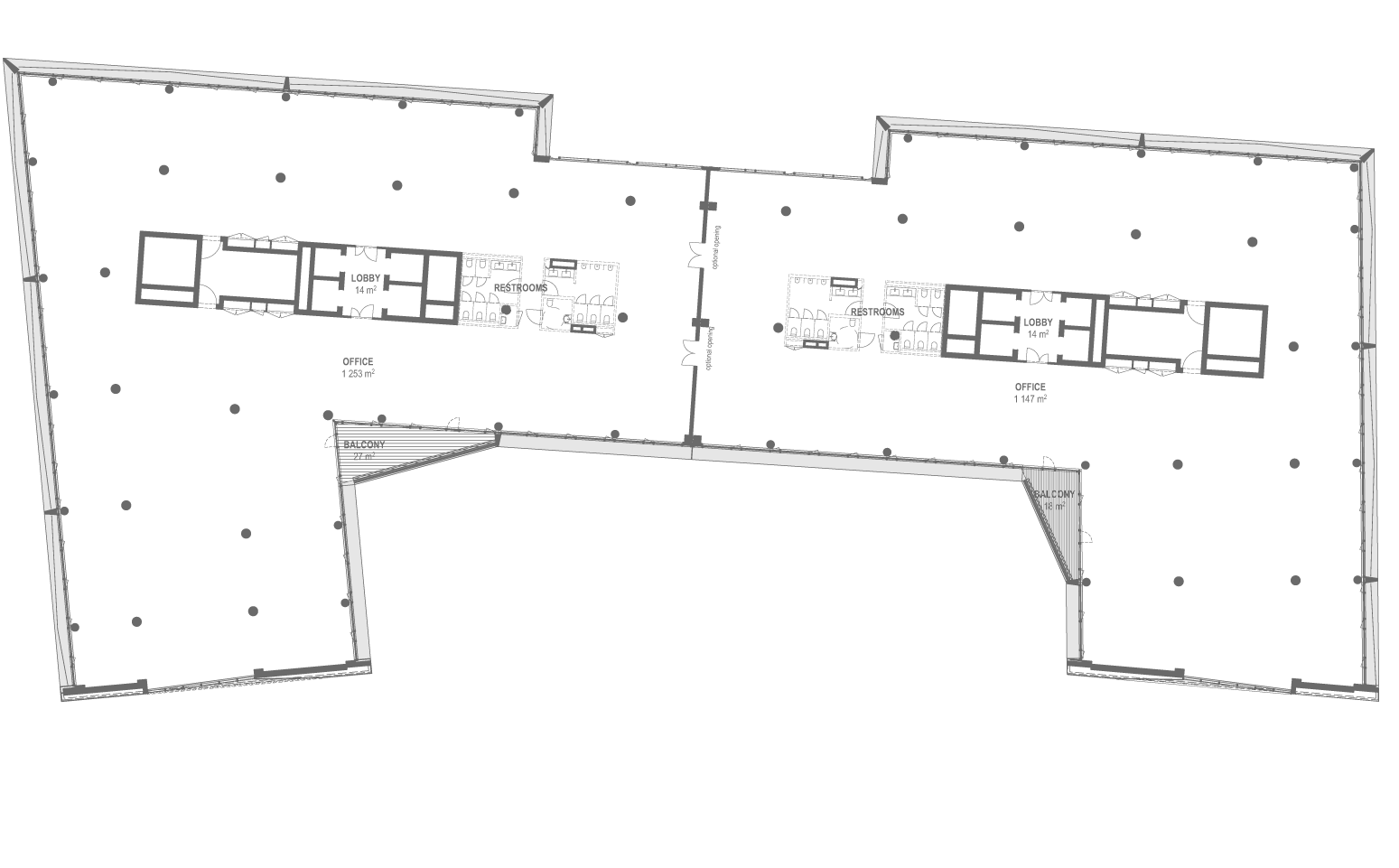
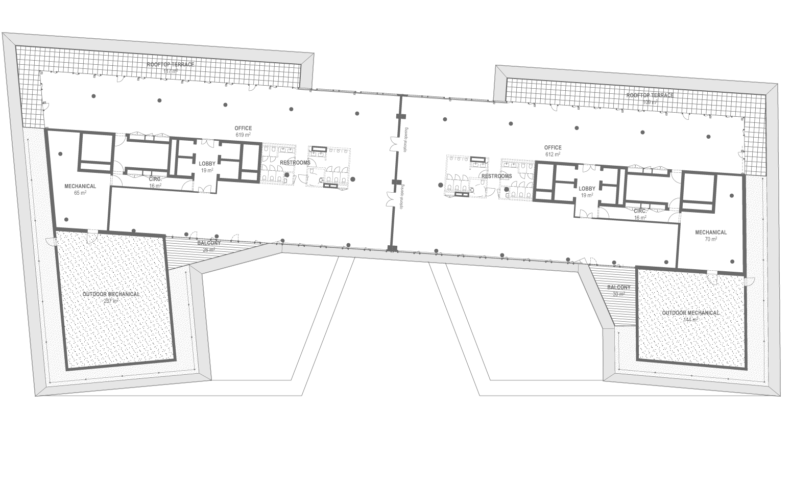
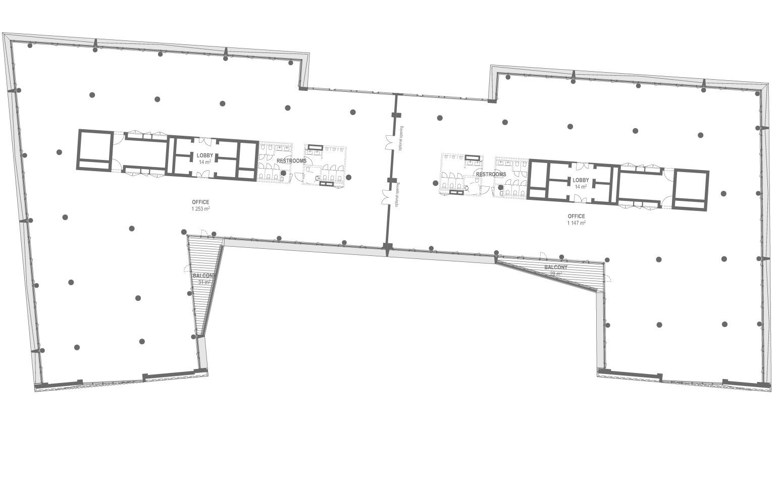
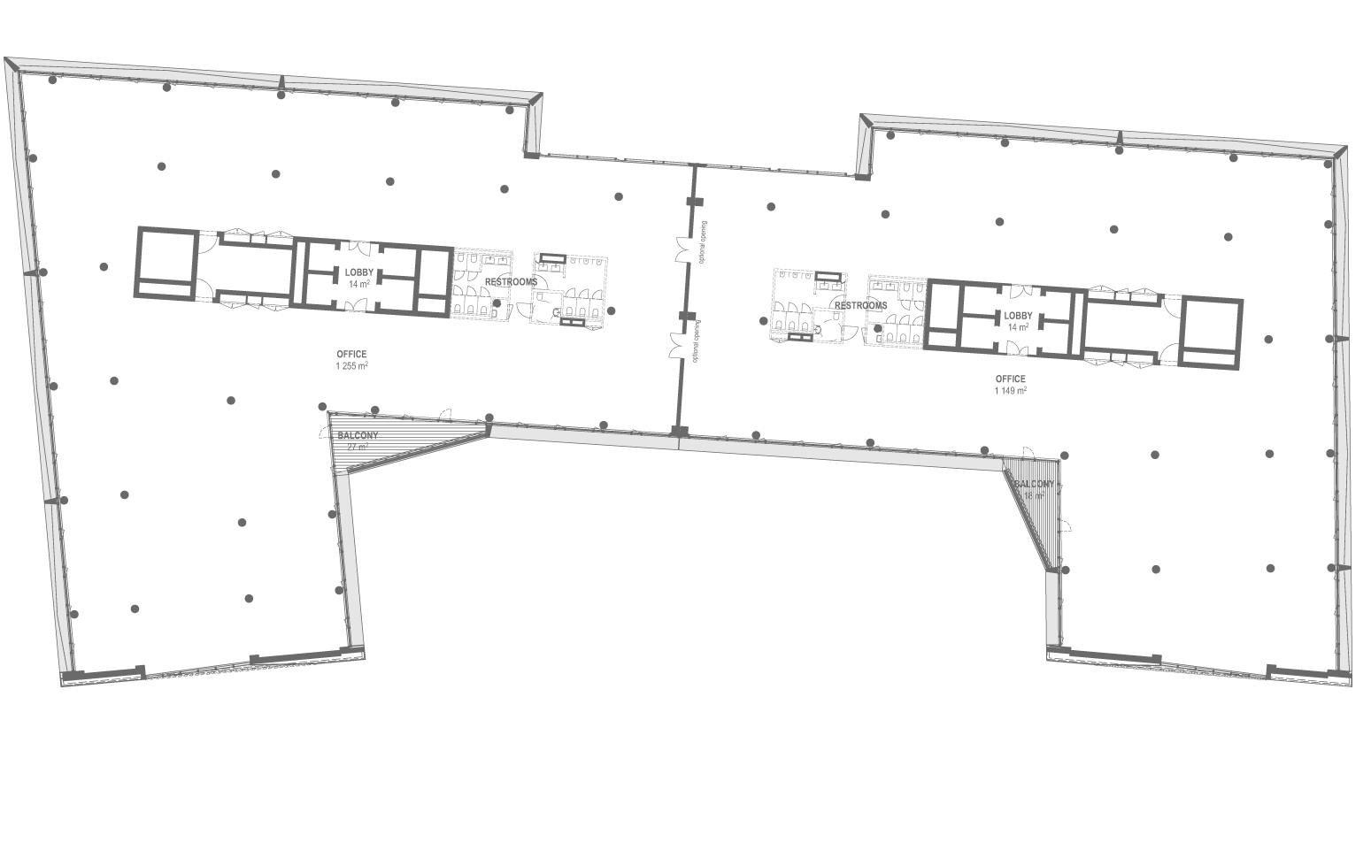
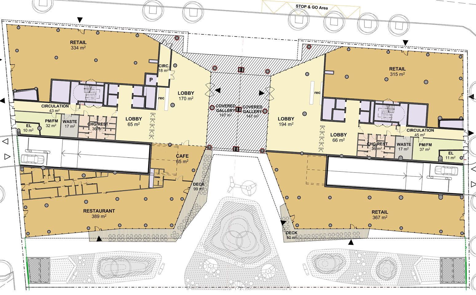
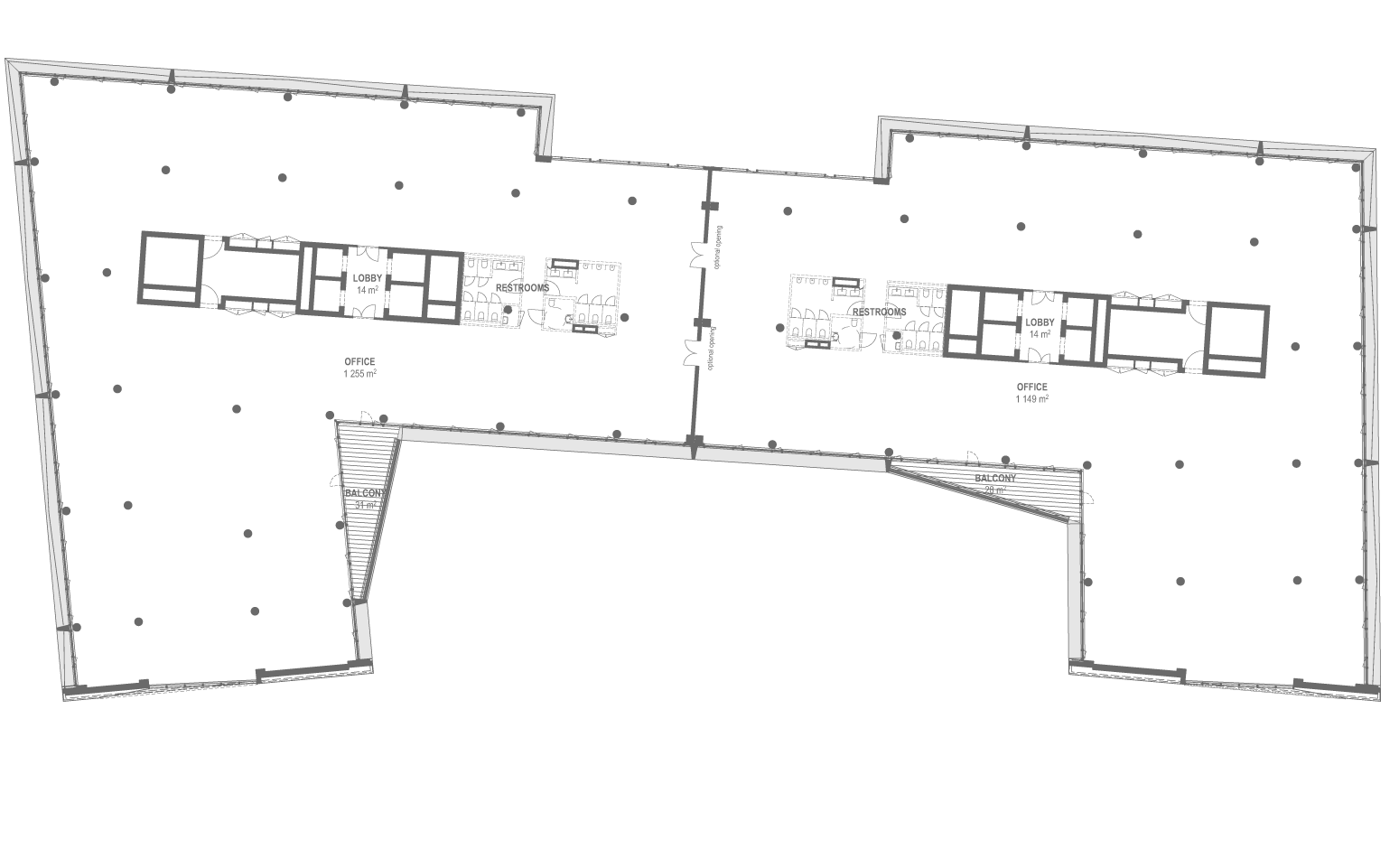
Green Court Office - Floor plans
7
th
Floor
6
th
Floor
5
th
Floor
4
th
Floor
3
rd
Floor
2
nd
Floor
1
st
Floor
Ground Floor
-1
st
Floor
-2
nd
Floor
-3
rd
Floor
Green Court Office:
Creativity and Technology working in Harmony
Get in touch!
TOP